Zu vermieten: 1800m²
Gewerberäumlichkeiten an zentraler Lage in Worb
 Biete
- Miete
- Hell
- Parkplatz aussen
- Sonnig
- Zentral
Entdecken Sie diese vielseitige Gewerbeimmobilie an der Güterstrasse 10 in Worb, die sich ideal für industrielle und gewerbliche Nutzungen eignet. Das Gebäude besticht durch seine funktionale Architektur, welche verschiedenste Nutzungsmöglichkeiten bietet.
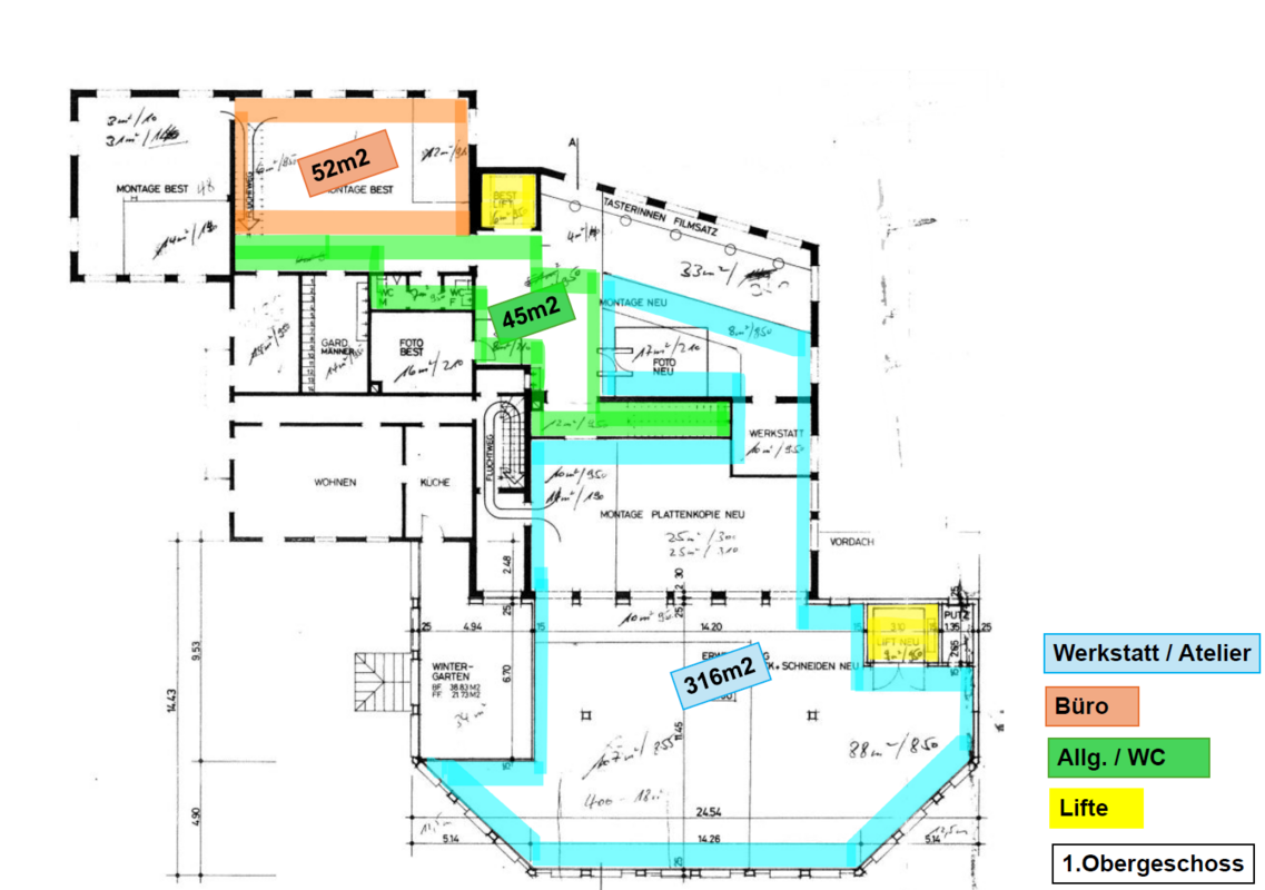
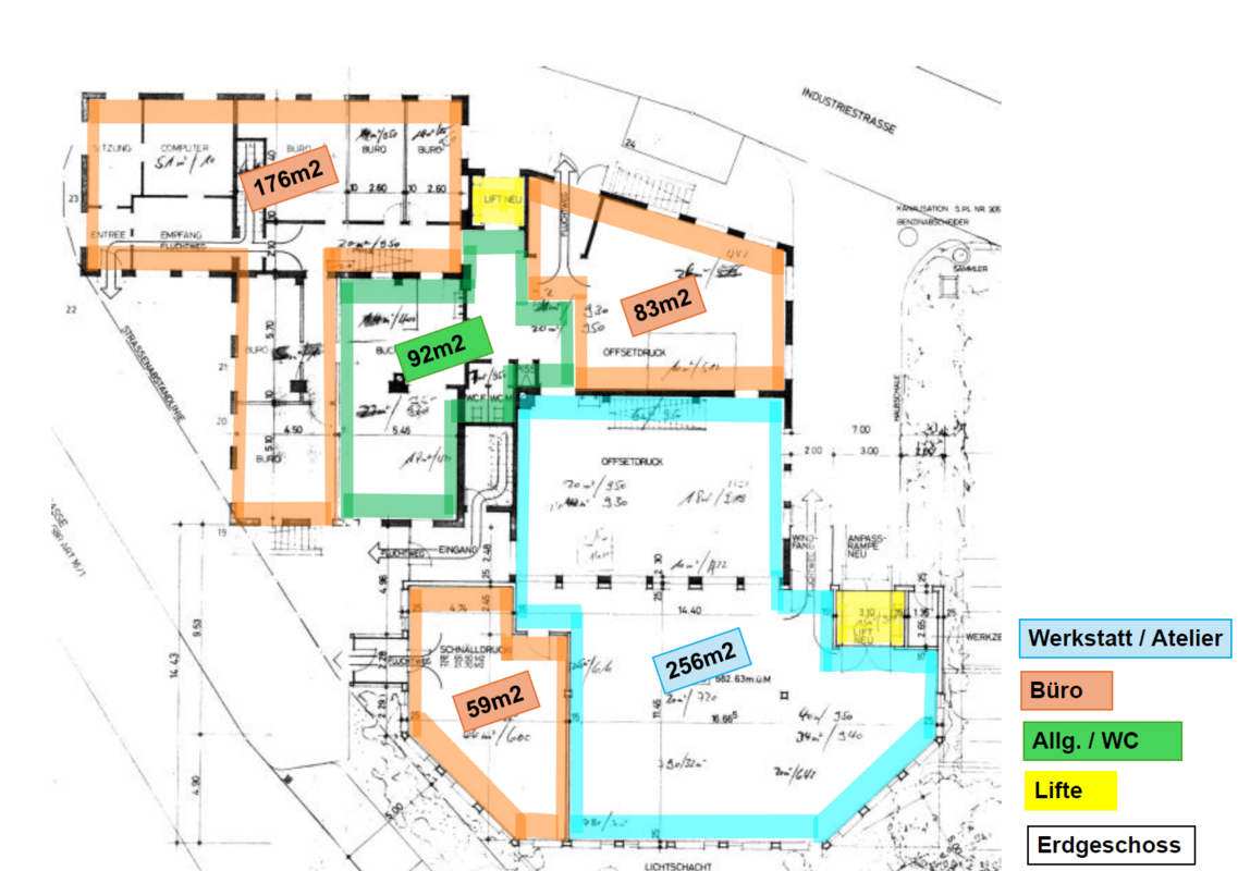
Raumangebot (Nettoflächen):
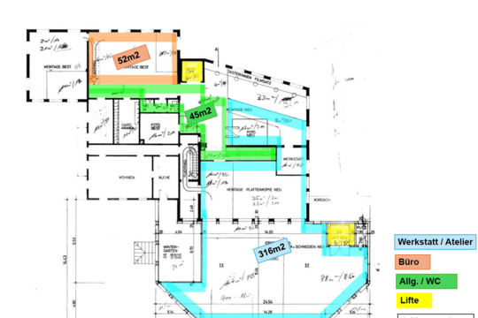
- Erdgeschoss
316m2 Büro
256m2 Werkstatt/Atelier
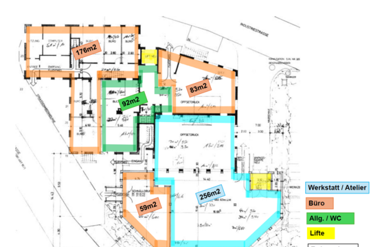
- 1. Obergeschoss
52m2 Büro
316m2 Werkstatt/Atelier
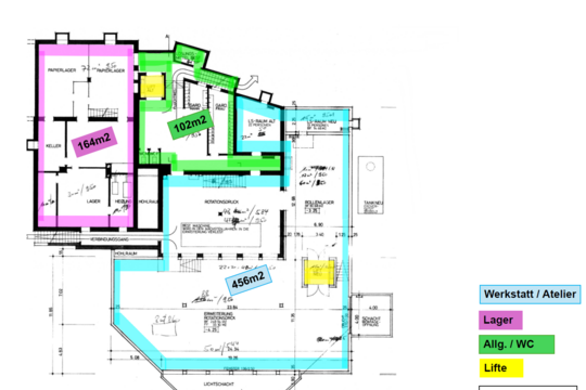
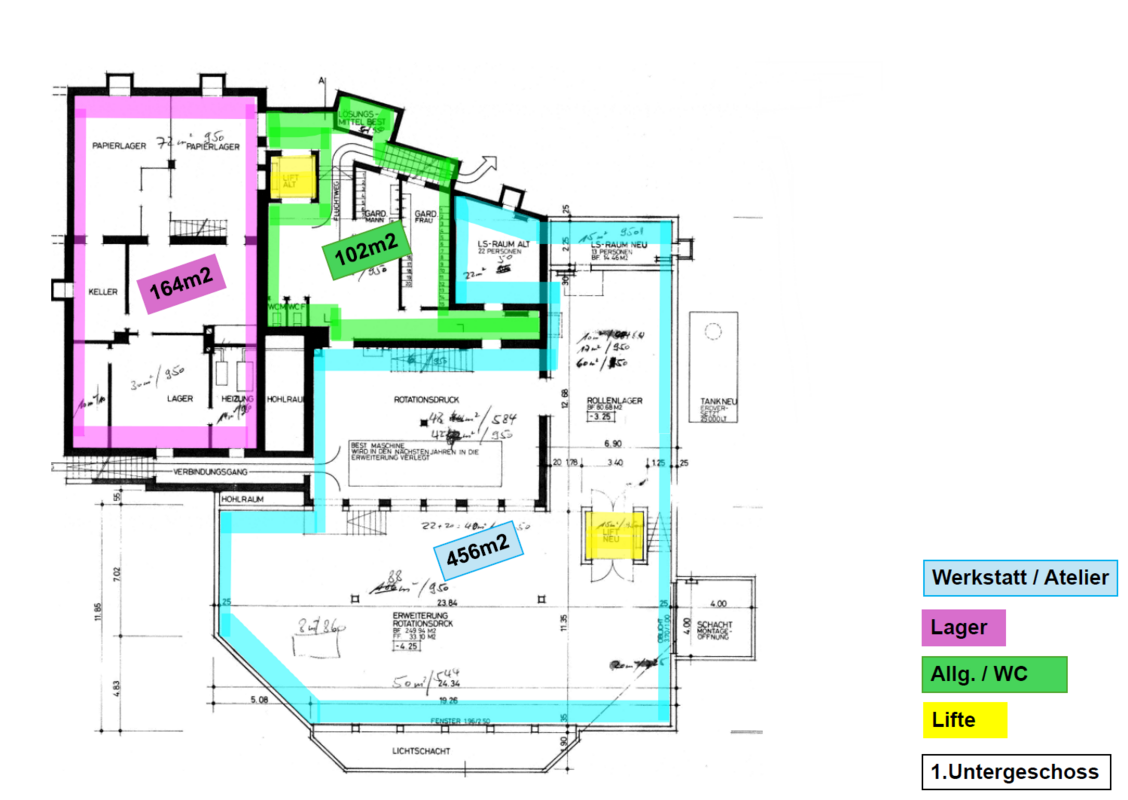
- 1. Untergeschoss
456m2 Werkstatt/Atelier
164m2 Lager
Infrastruktur:
- Waren-Anlieferungsrampe
- Waren- und Personenlift
- Schacht / Montageöffnung
- WC-Anlagen
- Garderoben
- Pausenraum
- 20 Parkplätze
Erstklassige Lage: Die Immobilie profitiert von einer ausgezeichneten Verkehrsanbindung. Die Autobahnauffahrt Muri/Gümligen ist in 9 Fahrminuten erreichbar und zum Bahnhof Worb Dorf sind es nur 3 Gehminuten. Für die täglichen Bedürfnisse sorgt das nahegelegene Coop Bären-Zentrum in 4 Gehminuten Entfernung. Die ruhige Lage garantiert eine störungsfreie Arbeitsatmosphäre, während die sonnige Ausrichtung für angenehme Lichtverhältnisse sorgt.
Interessiert? Zögern Sie nicht, uns zu kontaktieren und mehr über Ihren möglichen neuen Geschäftsstandort in Worb zu erfahren. Wir freuen uns auf Ihre Anfrage!
Details
Standort
3076 Worb
				Kuhn Immobilien Inhaber Jürg Messerli
 Güterstrasse 2
 3076 Worb
 031 838 48 48
 
					E-Mail
				
			
			Erstellt:
			04.09.2025 
 Geändert: 24.10.2025
 Klicks heute: 
 Klicks total: 
		
 
							 
							 
							 
							 
							 
							 
							 
							 
							 
							 
							