Zu vermieten in Neubau: Grosszügige, helle Büro- und Gewerbeflächen an zentraler Lage in Worb

Biete

  • Miete
  • Erstbezug
  • Hell
  • Parkplatz aussen
  • Parkplatz innen

Ab sofort oder nach Vereinbarung haben wir für Sie an der Sonnenbodenstrasse 8 in 3076 Worb noch die letzten, attraktiven Gewerbeeinheiten im Angebot:

  • im UG: 4 Einstellhallenplätze (Option  mit E-Ladestation)
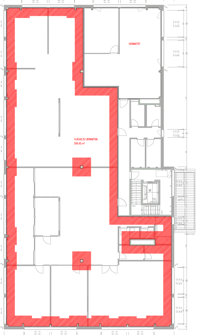
  • im 1. Obergeschoss: 122 m² Büro- und Gewerbefläche zu CHF 190.- pro m² / Jahr plus MwSt.

Die zu vermietende Gewerbefläche bietet nachfolgende Vorzüge:

  • ideal für Büro, Showroom, Atelier oder Praxis
  • multifunktionale, grosszügige, individuelle Raumaufteilung möglich
  • attraktive Raumhöhe mit 3.34 m
  • angenehmes, offenes Raumgefühl
  • viel natürliches Tageslicht dank grosszügiger Fensterflächen und guter Besonnung
  • elektrische Storen für ideale Beschattung
  • moderner Warenlift vom UG bis ins OG (1 Europalette, 1'275 kg Nutzlast)
  • Bodenbelastung max. 225 kg / m²
  • nachhaltige Bauweise mit ausgewählten Materialien
  • Strombezug direkt von der hauseigenen Photovoltaik-Anlage zu attraktiven Konditionen
  • Luft-Wärme-Pumpe mit Bodenheizung
  • vier Besucherparkplätze direkt vor der Liegenschaft zur gemeinschaftlichen Nutzung
  • eigene Nasszone oder Mitbenutzung gemeinschaftliche WC-Anlage möglich
  • individueller Innenausbau durch Mieter (Vermietung im Rohbau)

Einstellhallenplätze zu je CHF 125.- plus MwSt. sowie Einstellhallenplätze mit E-Ladestation zu je CHF 150.- plus MwSt. stehen zur Verfügung.

 

Weitere Informationen sowie Bild- und Videomaterial finden Sie auf unserer Webseite: www.winzenried-immobilien.ch

Details


Verfügbarkeit
ab sofort

Standort

Sonnenbodenstrasse 8
3076 Worb

Kontakt

Winzenried Immobilien AG
3123 Belp
031 530 12 42
E-Mail

Nachricht senden
Statistik

Erstellt: 28.08.2024
Geändert: 29.10.2025
Klicks heute:
Klicks total: